Ir al contenido
PROYECTOS
OBRAS
URBANO
CONTACTO
Main Menu
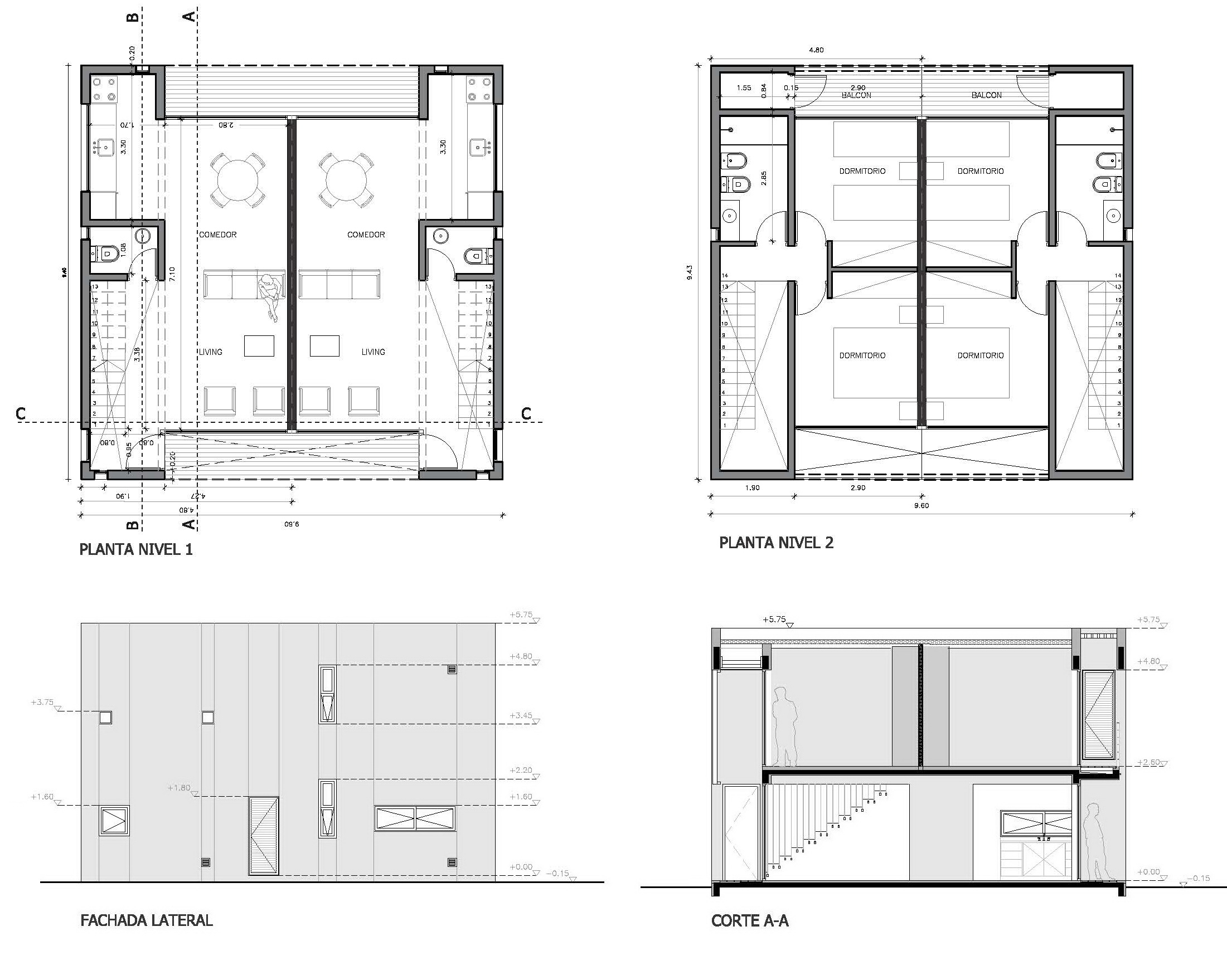
Viviendas en Lomas de Solymar
2015 Viviendas apareadas en Lomas de Solymar, Canelones.
PROYECTOS
OBRAS
URBANO
CONTACTO