Ir al contenido
PROYECTOS
OBRAS
URBANO
CONTACTO
Main Menu
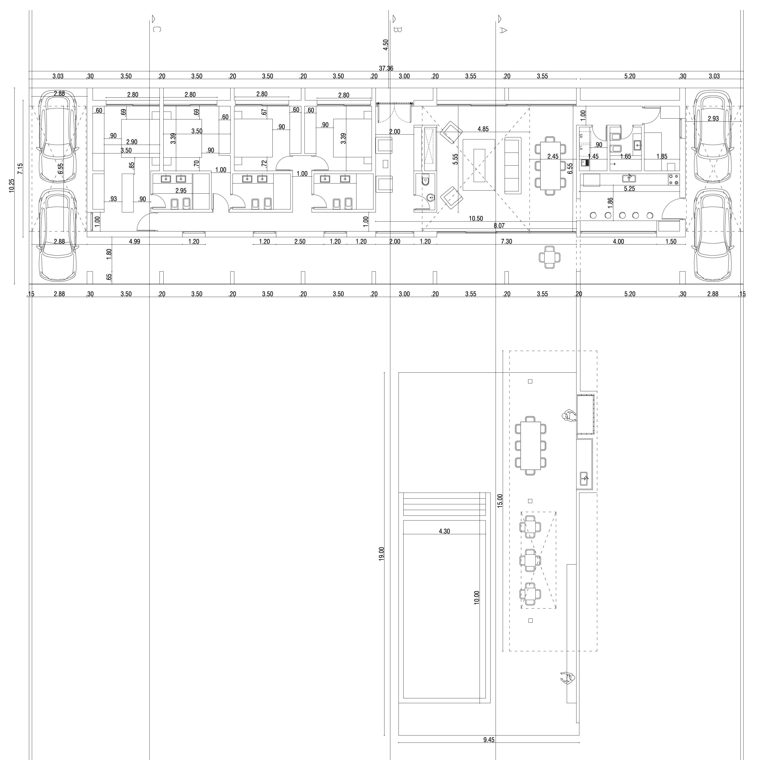
Vivienda Los Tilos
2023 Vivienda Unifamiliar, Maldonado.
PROYECTOS
OBRAS
URBANO
CONTACTO